Posts: 625
Threads: 4
Joined: Jul 2016
Reputation:
22
(06-16-2017, 11:21 AM)Markster Wrote: There is a Park-and-Ride being built at Fairway/Wilson. It is replacing the Crabby Joe's that used to be there.
It's being built partly at the behest of Fairview Mall, as they had concerns about park-and-riders using their parking lot. It also opened up space to rebuild the bus mall to be closer to the LRT station. (which was also something that Fairview wanted; the bus mall further away and not on their land)
Have any photos been taken of the Park and Ride? I'm curious to see it... is it just a surface parking lot or multilevel? Also how does it connect/interact with the station?
Posts: 6,905
Threads: 32
Joined: Oct 2014
Reputation:
224
(06-16-2017, 02:50 PM)urbd Wrote: Parking has a cost. Users must pay for what they use.
I don't pay to ride my bike on the Spur Line Trail...
Posts: 4,605
Threads: 16
Joined: Aug 2014
Reputation:
150
06-16-2017, 03:05 PM
(This post was last modified: 06-16-2017, 03:08 PM by KevinL.)
(06-16-2017, 02:51 PM)urbd Wrote: (06-16-2017, 11:21 AM)Markster Wrote: There is a Park-and-Ride being built at Fairway/Wilson. It is replacing the Crabby Joe's that used to be there.
It's being built partly at the behest of Fairview Mall, as they had concerns about park-and-riders using their parking lot. It also opened up space to rebuild the bus mall to be closer to the LRT station. (which was also something that Fairview wanted; the bus mall further away and not on their land)
Have any photos been taken of the Park and Ride? I'm curious to see it... is it just a surface parking lot or multilevel? Also how does it connect/interact with the station?
Surface lot. It will occupy the corner of the property facing the Fairway/Wilson intersection on the former Burger King and pert of the former Crabby's. The new bus arrangements will be on the Leon's-adjacent side. As the station is immediately alongside Leon's the other way, they all intersect well.
I think a layout diagram is in a PDF somewhere, but I don't have it handy. EDIT: Markster posted it on the next page.
Posts: 2,163
Threads: 17
Joined: Sep 2014
Reputation:
77
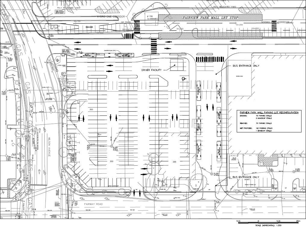
(06-16-2017, 02:51 PM)urbd Wrote: Have any photos been taken of the Park and Ride? I'm curious to see it... is it just a surface parking lot or multilevel? Also how does it connect/interact with the station?
I don't think they've done much other than tear down the previous buildings.
It's just going to be a surface lot.
Here's the layout:
(06-16-2017, 03:05 PM)KevinL Wrote: I think a layout diagram is in a PDF somewhere, but I don't have it handy. 
Facebook -> I support Light Rail -> search for "Fairview"
I made a post about it last year.
Posts: 281
Threads: 0
Joined: Jul 2016
Reputation:
31
(06-16-2017, 02:50 PM)urbd Wrote: Charging for parking. Like in so many cities around the world. I cannot think of a single mall in Mexico City that does not charge for parking. Parking has a cost. Users must pay for what they use.
Most malls around here believe "free" parking and higher rents is the better business decision. Seems to work pretty well for them.
Maybe that changes if the parking lot starts becoming really attractive to people that aren't shopping in the mall, but I doubt it. Yorkdale mall had free parking for years even though lots of people just used it to go into the city. I don't know if that's still the case or not.
Posts: 4,605
Threads: 16
Joined: Aug 2014
Reputation:
150
Are they still building the 'driver facility' at the northwest corner, or will they just use the one already built adjacent to the track terminus?
Posts: 4,486
Threads: 1
Joined: May 2015
Reputation:
214
(06-16-2017, 03:01 PM)Canard Wrote: (06-16-2017, 02:50 PM)urbd Wrote: Parking has a cost. Users must pay for what they use.
I don't pay to ride my bike on the Spur Line Trail...
Nor do motorists pay to use local streets, or in this backward country of ours, even superhighways.
But ultimately, charging is a good way of rationing use of a scarce resource. Parking is scarce, where and because real estate is scarce.
Even if we did charge for use of bike trails, the fee would have to be miniscule compared to the fee required to use a motor vehicle on a public road.
Posts: 625
Threads: 4
Joined: Jul 2016
Reputation:
22
(06-16-2017, 03:15 PM)ijmorlan Wrote: (06-16-2017, 03:01 PM)Canard Wrote: I don't pay to ride my bike on the Spur Line Trail...
Nor do motorists pay to use local streets, or in this backward country of ours, even superhighways.
But ultimately, charging is a good way of rationing use of a scarce resource. Parking is scarce, where and because real estate is scarce.
Even if we did charge for use of bike trails, the fee would have to be miniscule compared to the fee required to use a motor vehicle on a public road.
Agree... the thing about surface parking is all the externalities associated with it. Land value, maintenance, salt pollution, heat island effect, lack of green space, visual impacts... the list can go on forever. Based on its intensity of use and provided benefit/square metre it is simply a terrible use of land with a really high cost associated with it that nobody seems to pay for.
Posts: 625
Threads: 4
Joined: Jul 2016
Reputation:
22
(06-16-2017, 03:05 PM)Markster Wrote: (06-16-2017, 02:51 PM)urbd Wrote: Have any photos been taken of the Park and Ride? I'm curious to see it... is it just a surface parking lot or multilevel? Also how does it connect/interact with the station?
I don't think they've done much other than tear down the previous buildings.
It's just going to be a surface lot.
Here's the layout:
(06-16-2017, 03:05 PM)KevinL Wrote: I think a layout diagram is in a PDF somewhere, but I don't have it handy. 
Facebook -> I support Light Rail -> search for "Fairview"
I made a post about it last year.
Thanks for posting this again, I remember now. Really sad to see any built form being replaced by yet another surface lot, and next to a major LRT station! I know the terminus of the line is where a park and ride makes the most sense... but surface?! When are we going to start moving away from it? I would think the sky rocketing land values would provide enough incentive to at least build a 2 floor garage somewhere around the station? It's a matter of time of course, but still disappointing.
Posts: 4,605
Threads: 16
Joined: Aug 2014
Reputation:
150
06-16-2017, 03:52 PM
(This post was last modified: 06-16-2017, 03:55 PM by KevinL.)
Once the area starts intensifying (in the range of a decade, I'd guess), the Region is open to that lot being developed.
Posts: 1,103
Threads: 3
Joined: Aug 2015
Reputation:
60
Final paving will be happening downtown starting this Sunday for about 2 weeks:
Starting as early as June 18, crews will begin to complete final asphalt paving in Downtown Kitchener. The following closures are required for this work:
Victoria, from Waterloo to Charles, will close nightly on or about June 18 at (7 p.m. to 7a.m.) for approximately two nights - Intersections impacted: Victoria/Charles and Victoria/King
King, from Victoria to Francis, will close nightly on or about June 19 (7 p.m. to 7a.m.) for approximately two nights - Intersection impacted: King/Francis
Francis, from King to Duke, will close nightly on or about June19 (7 p.m. to 7a.m.) for approximately two nights - Intersection impacted: Francis/Duke
Charles, Victoria to Gaukel, will close nightly on or about June 22 (7 p.m. to 7a.m.) for approximately two nights - Intersections impacted: Charles/ Francis; Charles/Water; Charles/ Gaukel,
- In preparation for this paving the following intersections will need to close for one day:
- Charles/Francis will close on or about June 20
- Charles/Gaukel will close on or about June 20
- Charles/Water will close on or about June 21
Charles, Gaukel to Benton, will close nightly on or about June 26 (7 p.m. to 7a.m.) for approximately two nights - Intersections impacted: Charles/Ontario; Charles/Queen
- In preparation for this paving the following intersections will need to close for one day:
- Charles/Queen will close on or about June 20
- Charles/Ontario will close on or about June 21
- Charles/Benton will close on or about June 22
Posts: 281
Threads: 0
Joined: Jul 2016
Reputation:
31
(06-16-2017, 03:15 PM)ijmorlan Wrote: Nor do motorists pay to use local streets, or in this backward country of ours, even superhighways.
This isn't true. I won't get back into this debate, but couldn't quite let the comment go without pointing out its untruthfulness.
Posts: 8,036
Threads: 39
Joined: Jun 2016
Reputation:
217
(06-16-2017, 04:26 PM)SammyOES2 Wrote: (06-16-2017, 03:15 PM)ijmorlan Wrote: Nor do motorists pay to use local streets, or in this backward country of ours, even superhighways.
This isn't true. I won't get back into this debate, but couldn't quite let the comment go without pointing out its untruthfulness.
This isn't true. You did get back into this debate, because you cannot let this comment go.....And apparently neither can I.
Posts: 281
Threads: 0
Joined: Jul 2016
Reputation:
31
06-16-2017, 05:05 PM
(This post was last modified: 06-16-2017, 05:05 PM by SammyOES2.)
(06-16-2017, 04:49 PM)danbrotherston Wrote: (06-16-2017, 04:26 PM)SammyOES2 Wrote: This isn't true. I won't get back into this debate, but couldn't quite let the comment go without pointing out its untruthfulness.
This isn't true. You did get back into this debate, because you cannot let this comment go.....And apparently neither can I.
I can totally let this comment go. Just watch me.
Edit: Just to be safe, this post is a joke.
Posts: 4,486
Threads: 1
Joined: May 2015
Reputation:
214
(06-16-2017, 04:26 PM)SammyOES2 Wrote: (06-16-2017, 03:15 PM)ijmorlan Wrote: Nor do motorists pay to use local streets, or in this backward country of ours, even superhighways.
This isn't true. I won't get back into this debate, but couldn't quite let the comment go without pointing out its untruthfulness.
Not this again. I feel like I’m in bizarro world where something can be called “user pay” even though there is no tolling mechanism.
Until somebody points out to me the fee that motorists qua motorists pay to use roads, what I said is obviously true.
Income tax doesn’t count — that is paid by people who receive money.
Sales tax doesn’t count — that is paid by people who buy stuff.
Property tax doesn’t count — that is paid by people who own stuff.
Gas tax doesn’t count — that is paid by people who use gasoline. I will admit that there is a correlation between gasoline use and road use, but it’s not a direct connection, especially with increased diversity in vehicle propulsion technology, and in any case I’m not aware that the gas tax collects more than a small fraction of all the money required to build and maintain the road network.
Even car registration fees and the like don’t count — that is paid by people who maintain a car in a state to be used on the roads, regardless of how much they actually use it. It has to do with driveable vehicle count, rather than road use.
Of course, there is a significant correlation between the extent to which one pays under those categories and the extent to which one uses the roads, but in no case is the charge actually based on using the roads.
So, my statement stands. Basically, please try to understand what I am saying before dismissing it as untrue.
Unless I’m forgetting a fee or charge that is paid by motorists. Am I forgetting the fee that road users pay that funds the roads?
|