Welcome Guest!
In order to take advantage of all the great features that Waterloo Region Connected has to offer, including participating in the lively discussions below, you're going to have to register. The good news is that it'll take less than a minute and you can get started enjoying Waterloo Region's best online community right away.
or Create an Account




Thread Rating:
  • 3 Vote(s) - 3 Average
  • 1
  • 2
  • 3
  • 4
  • 5
General Retail News
TD Bank is opening its new Help and Advice center (regular branch but without tellers) in Pioneer Park Plaza on November 16th. Replaces the existing and soon to be demolished full service branch
Reply


So, just ATMs and advice offices?
Reply
(10-12-2017, 06:44 PM)KevinL Wrote: Ikea's next full-size store is opening in... London, in 2019.

How much longer until we get similarly blessed?
According to Retail insider Ikea is Postponing plans to Open in London, https://www.retail-insider.com/retail-in...ly-27-2018
Reply
(07-15-2018, 01:41 PM)KevinL Wrote: So, just ATMs and advice offices?

It's the new world of retail banking ...
Reply
Anyone know what’s going on in the old Angel’s Diner/Beat Goes On section on Highland?
Reply
The new Pioneer Park Zehrs location is due to open August 24th. Exterior signage went up today
Reply
Some good progress on the LCBO, the steel framing is almost complete. Much quicker when you don't have to dig an underground parking garage!

   

   
Reply


Are cars going to be driving into that parking lot off King?
Reply
I wondered the same thing. I had assumed that the new building would abut the existing buildings on each side.
Reply
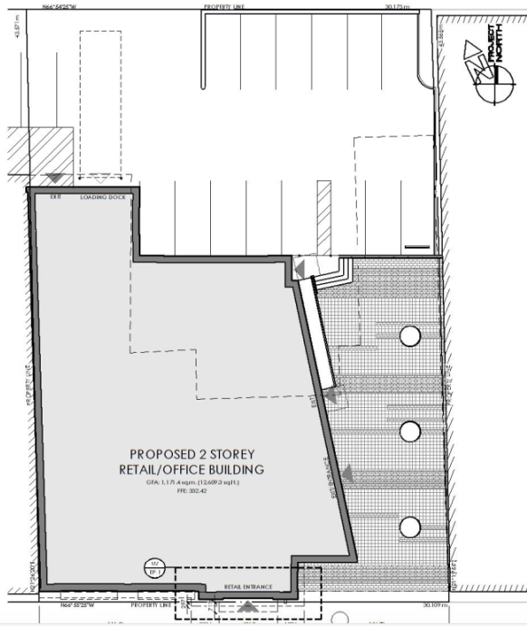
There is no access to the (very small) parking lot off King St.

[Image: attachment.php?aid=4910]
Reply
(08-31-2018, 02:07 PM)tomh009 Wrote: There is no access to the (very small) parking lot off King St.

[Image: attachment.php?aid=4910]

It's slightly bigger than the beer store next door. That lot has eight spots including the handicapped spot. It's going to be tight at peak times as not everyone will be walking there from their downtown condo.
Reply
There is also plenty of street parking downtown, and a city parking lot half a block away (behind 345 King St W).

That said, I'll be walking so I won't be taking one of the precious spots. Smile
Reply
The Scott Street thrift store in the former Braun's is moving to Frederick Mall, citing drug use and homeless presence in the area.

https://www.therecord.com/news-story/893...-location/
Reply


Huh? Thrift stores in malls?!?! That doesn't quite seem like the intended audience.
Reply
(10-02-2018, 04:59 AM)plam Wrote: Huh? Thrift stores in malls?!?! That doesn't quite seem like the intended audience.

Only because we don’t have enough malls. Malls are the ultimate pedestrian environment: no cars, no weather. So it’s natural that when there aren’t enough, they are full of the highest-end retail. As more malls get built (or as certain ones lose their cachet for whatever reason), there is eventually room for lower-end establishments within them.
Reply
« Next Oldest | Next Newest »



Forum Jump:


Users browsing this thread: 2 Guest(s)

About Waterloo Region Connected

Launched in August 2014, Waterloo Region Connected is an online community that brings together all the things that make Waterloo Region great. Waterloo Region Connected provides user-driven content fueled by a lively discussion forum covering topics like urban development, transportation projects, heritage issues, businesses and other issues of interest to those in Kitchener, Waterloo, Cambridge and the four Townships - North Dumfries, Wellesley, Wilmot, and Woolwich.

              User Links